第十三章 顶棚装饰装修构造图(下)
第四节木饰面顶棚吊顶构造

图 13-4-1 木饰面板顶棚三维图

图 13-4-2 分隔木镶板顶棚(一)三维图

图 13-4-3 木饰面板顶棚构造节点图

图 13-4-4 分隔木镶板顶棚(一)构造节点图

图 13-4-5 分隔木镶板顶棚(二)三维图

图 13-4-6 分隔木镶板顶棚(三)三维图

图 13-4-7 分隔木镶板顶棚(二)构造节点图

图 13-4-8 分隔木镶板顶棚(三)构造节点图

图 13-4-9 木制假梁顶棚(一)三维图

图 13-4-10 木制假梁顶棚(二)三维图

图 13-4-11 木制假梁顶棚(一)构造节点图

图 13-4-12 木制假梁顶棚(二)构造节点图

图 13-4-13 木制假梁顶棚(三)三维图

图 13-4-14 木制假梁顶棚(四)三维图

图 13-4-15 木制假梁顶棚(三)构造节点图

图 13-4-16 木制假梁顶棚(四)构造节点图
第五节透光材料顶棚构造

图 13-5-1 软膜天花顶棚三维图(固定式)

图 13-5-2 软膜天花顶棚三维图(可开式)

图 13-5-3 软膜天花顶棚构造节点图(固定式)

图 13-5-4 软膜天花顶棚构造节点图(可开式)

图 13-5-5 复合透光片顶棚三维图

图 13-5-6 透光膜顶棚三维图

图 13-5-7 复合透光片顶棚构造节点图

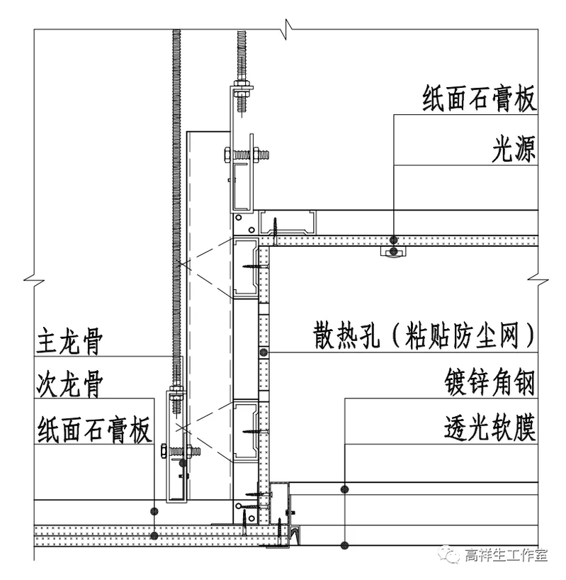
图 13-5-8 透光膜顶棚构造节点图

图 13-5-9 透光板与铝板顶棚交接三维图

图 13-5-10 透光板与石膏板顶棚交接三维图

图 13-5-11 透光板与铝板顶棚交接构造节点图

图 13-5-12 透光板与石膏板顶棚交接构造节点图
第六节GRG 材料顶棚构造

图 13-6-1 GRG 造型板顶棚(一)三维图

图 13-6-2 GRG 造型板顶棚(一)构造节点图

图 13-6-3 GRG 造型板顶棚(二)构造节点图

图 13-6-4 GRG 造型板顶棚(二)三维图
第七节顶棚窗帘盒、灯具、空调风口处的构造

图 13-7-1 暗藏式窗帘盒顶棚三维图(轻型窗帘)

图 13-7-2 暗藏式窗帘盒顶棚构造节点图(轻型窗帘)

图 13-7-3 暗藏式窗帘盒顶棚构造节点图(重型窗帘)

图 13-7-4 暗藏式窗帘盒顶棚三维图(重型窗帘)

图 13-7-5 暗藏式窗帘盒顶棚三维图

图 13-7-6 暗藏式窗帘盒顶棚构造节点图

图 13-7-7 明装式窗帘盒顶棚构造节点图

图 13-7-8 明装式窗帘盒顶棚三维图
第八节顶棚装饰装修中不同种材质的交接构造

图 13-8-1 铝格栅与石膏板顶棚交接(一)三维图

图 13-8-2 铝格栅与石膏板顶棚交接(一)构造节点图

图 13-8-3 铝格栅与石膏板顶棚交接(二)构造节点图

图 13-8-4 铝格栅与石膏板顶棚交接(二)三维图

图 13-8-5 铝格栅与木饰面顶棚交接三维图

图 13-8-6 铝格栅与木饰面顶棚交接构造节点图

图 13-8-7 石膏板与木饰面顶棚交接构造节点图

图 13-8-8 石膏板与木饰面顶棚交接三维图

图 13-8-9 石膏板与不锈钢折板顶棚交接(一)三维图

图 13-8-10 石膏板与不锈钢折板顶棚交接(一)构造节点图

图 13-8-11 石膏板与不锈钢折板顶棚交接(二)构造节点图

图 13-8-12 石膏板与不锈钢折板顶棚交接(二)三维图

图 13-8-13 石膏板与石材顶棚交接三维图

图 13-8-14 石膏板与石材顶棚交接构造节点图

图 13-8-15 玻璃隔断与石膏板顶棚交接构造节点图

图 13-8-16 玻璃隔断与石膏板顶棚交接三维图
